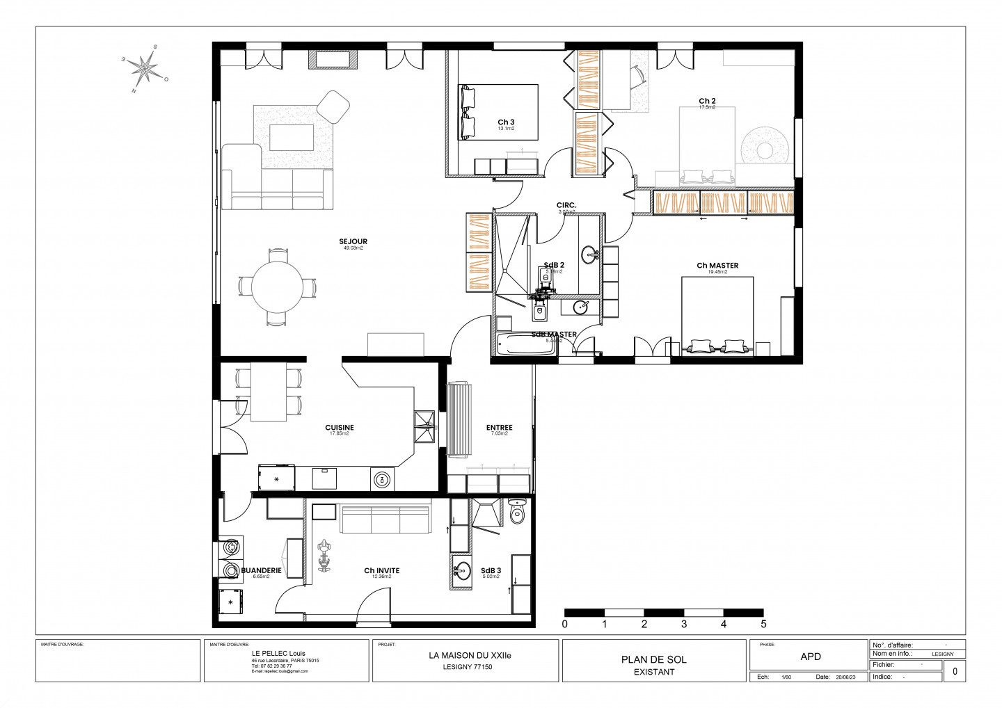
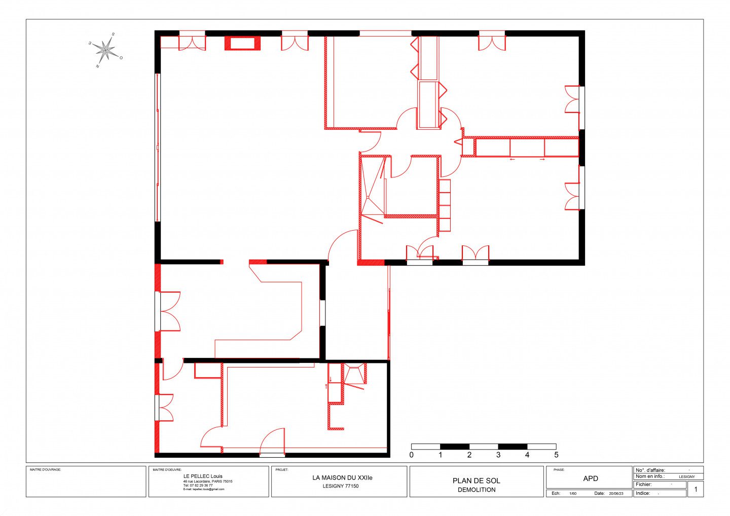
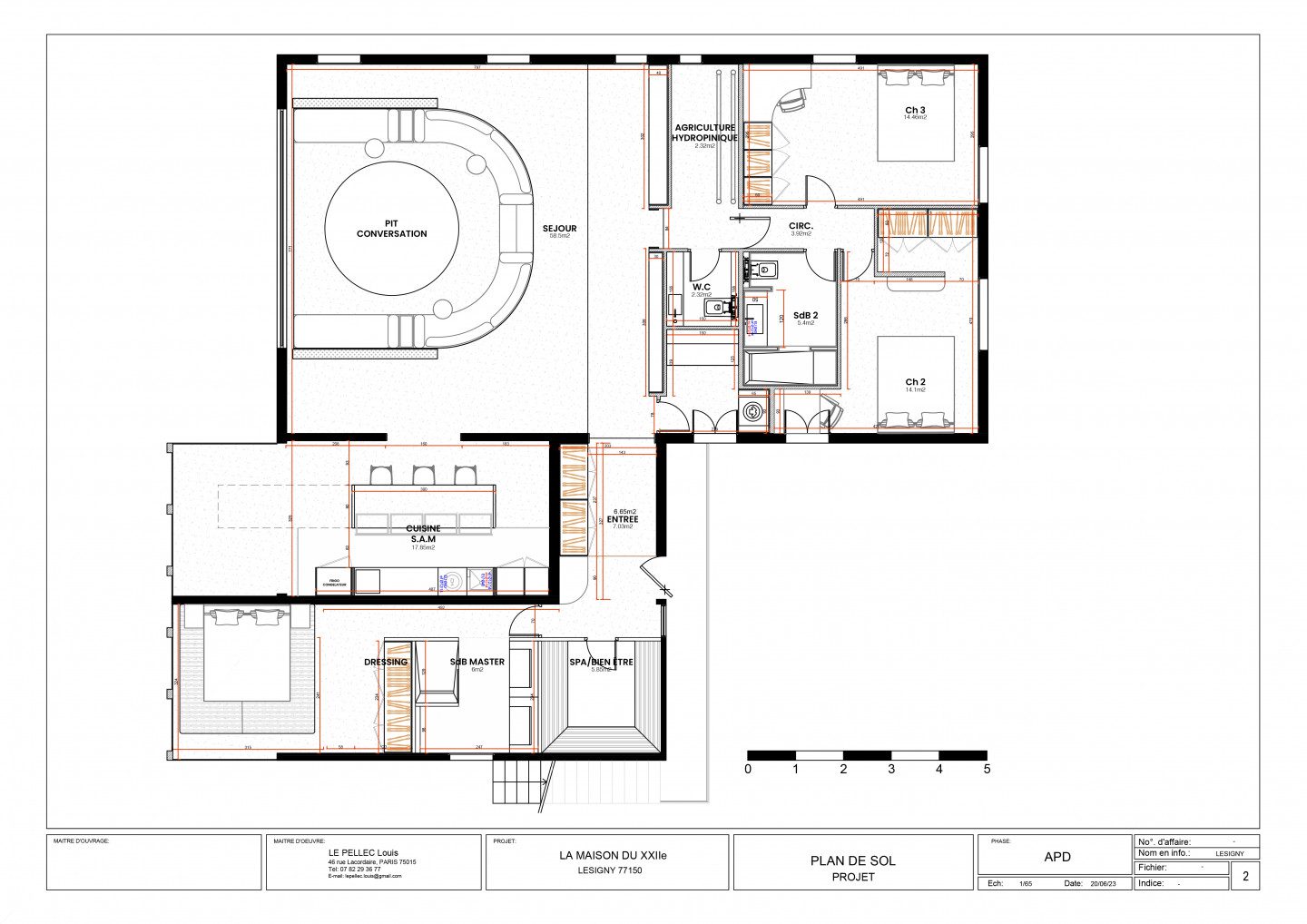
La transformation d’une habitation individuelle en habitation partagée.
Dans mon scénario futuriste, cette maison va évoluer en une habitation partagée pour répondre à plusieurs problématiques actuelles :
– Optimiser l’espace habitable
– Partager le coût des ressources et du logement en hausse en banlieue
– Loger plus de monde au m²
– Partager le confort de la maison et de son terrain
Ce n’est pas la répartition des espaces dans le programme qui change, mais le programme en lui même
Espaces communs et zones privées s’organisent différemment dans le nouveau programme architectural.
Ce programme partagé donne du sens aux espaces communs dans cette configuration, notamment au grand foyer. Comme dans les espaces communs, l’évolution du programme et le développement technologique /domotique sont imaginés au service de l’habitant, suivant trois points : 
Autonomie 
Sécurité
Confort
 
			


 
                             
         
        