Mon sujet libre s’inscrit dans la suite de mon mémoire intitulé “Enchanter le quotidien”. Dans ce dernier, je propose une relecture du quotidien au sein de la sphère domestique avec une forme d’esprit qui consiste à dégager les aspects plaisants et insolites de la réalité.
La peinture fut un médium pour continuer mes recherches, remises en question et collages d’usages de première nécessité. Ici par pièce : la cuisine et la salle de bain.
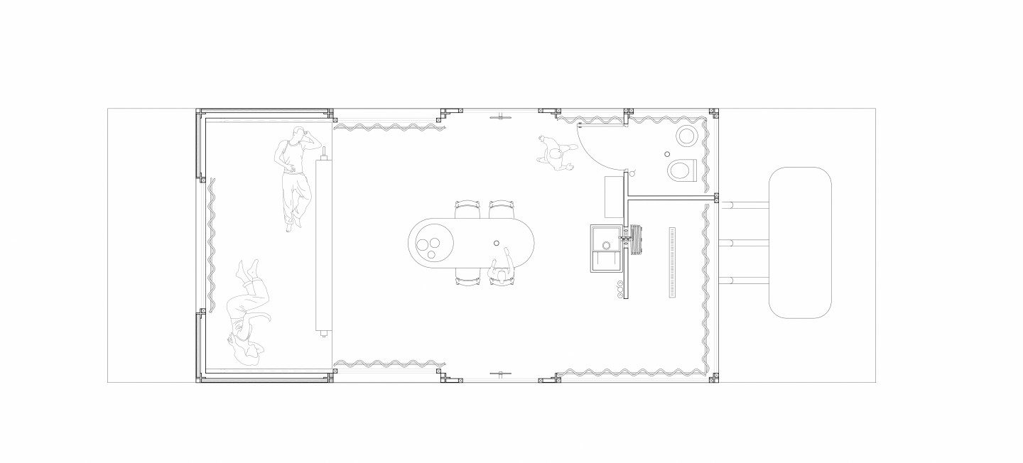
J’ai dessiné un petit habitat dans sa plus simple expression, avec le point de vue d’un enfant qui souhaite comprendre comment les choses fonctionnent. Les usages traditionnels tels que dormir, se laver, se chauffer, se nourrir deviennent ainsi le mou, le propre, le chaud et le frais.
Elle est pensée de manière à être montable et démontable rapidement on peut la considérer comme une habitation d’urgence. Revêtue de 8 panneaux préfabriqué en tôle d’acier inoxydable et le reste est en verre afin d’endosser son rôle de vitrine. D’où les rideaux , c’est l’idée du rideau sur “la scène de vie” .
Cette petite maison a été dessinée sur la base d’un plan libre en partant d’abord des usages, et le seul endroit que je cloisonne ce sont les toilettes qui demandent toujours de l’intimité. Elle est spacieuse, elle mesure 35 m2, le but étant de se sentir le plus libre possible et l’espace y contribue.
En tant que future architecte d’intérieur et designer, il me semble primordial de me questionner sur la légitimité des objets à l’ère de la surconsommation et de la course au temps dans laquelle nous vivons. J’ai souhaité revenir au bon sens, habiter avec bon sens !
Les équipements se suffiront à eux-mêmes pour animer l’espace et permettre une intervention la plus libre de l’usager.
Chaque objet et son usage ont été étudiés pour faire ressortir des évidences et prendre une position radicale face à la domotique l’abondance des objets inutiles que le marché propose.
Je l’ai imaginé dans le Jardin du Luxembourg à Paris, car je l’ai dessinée comme un manifeste des équipements de la maison de demain. Je voulais qu’elle soit dans un milieu urbain, comme une vitrine, maison témoin, un objet curieux en ville
Elle peut accueillir 2 nuits une famille de 4 personnes qui souhaitent vivre une expérience radicale et responsable tout en accédant à une place privilégiée dans Paris.
La sensibilisation à l’espace, à notre consommation, passe par la compréhension de l’habitat, selon moi le geste conscientise. Avec ces équipements, nous prenons nos responsabilités, nous savons ce que nous faisons. L’habitat ne cache rien, il n’y a pas de décor, il est livré à l’état brut et on y vit.


