Le conservatoire Darius Milhaud est réhabilité en centre culturel associatif. Des dispositifs lumineux et acoustiques, des interventions simples et réversibles, offrent aux artistes un outil de création agile et au public une vie de quartier renouée.
01 – PHOTOGRAPHIES DE L’EXISTANT
02 – RENCONTRE
Ce projet s’est construit autour d’échanges et de rencontres avec des membres de l’association « La Générale » qui occupe actuellement le bâtiment. Ces temps d’échanges ont nourri ma réflexion et mes intentions en éclairant les besoins en termes d’espace, d’usages et de vie du lieu.
ENTRETIEN – MARIE YAN, DRAMATURGE ET SCENARISTE
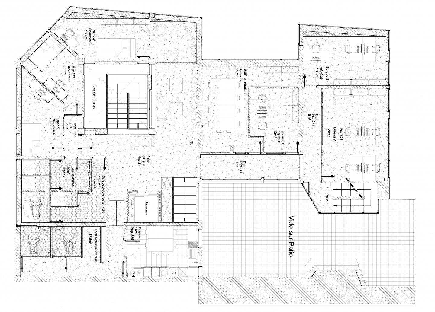
03 – PROGRAMME
La nature du bâtiment et de son occupation induit un programme qui se veut être riche et complexe et qui nécessite une organisation spatiale bien définie.
Le lieu se destinant à la fois à l’accueil d’un public extérieur, il est aussi un lieu de vie à part entière pour les membres de l’association et les artistes en résidence. Chacun doit y trouver ses marques dans un cadre serein et pérenne. Il apparaissait alors essentiel de mieux délimiter les espaces et d’ainsi distinguer espaces privés.
Dans cette perspective d’un lieu qui se veut dynamique, ouvert au public et adapté à l’accueil en résidence d’artistes, l’organisation spatiale a quelque peu était remaniée afin d’y ajouter un programme ajouté. Ce programme ajouté c’est l’accueil sur place de résidents en hébergement, ce qui n’est actuellement pas le cas.
Il a pour vocation de rendre plus facile le travail des artistes, leur permettant d’être sur place 24h/24h. Le lieu est donc à la fois un lieu et outil de travail mais aussi de vie, favorisant les échanges, le partage d’idées et d’expériences.
Le niveau R-2 est un espace particulier. Il est semi-enterré et est tourné vers un patio. À l’abri des regards, en toute discrétion, il est pourtant le noyau central de ce lieu artistique tourné vers le partage, la création et l’échange. Il est l’endroit où les rencontres se font, où les projets artistiques prennent vie.
04. Un vrai faux-plafond
Le plafond, plan vertical constitue un élément essentiel, fondamental de l’architecture. Dans cette volonté de ne toucher que le moins possible à l’existant, c’est cet élément architectural existant que j’ai souhaité remanier, revaloriser dans cette perspective de modularité de l’espace.
J’ai donc pensé le plafond comme un vrai faux-plafond, suivant une trame, un dessin, un quadrillage de 50x50cm. Cette grille, trame, a un premier rôle technique de passage de gaines, de réseau électrique, de réseau sprinkler. Cette trame et grille se retrouve à chaque niveau, créer une cohérence visuelle à chaque étage.
– LA LUMIÈRE –
La lumière vient donc faire partie intégrante de ce faux plafond tramé. Elle est une vraie intervention architecturale à part entière, elle intègre l’espace, le respecte, le souligne et y est associée.
La volonté a donc été à partir d’une contrainte simple, celle de ce faux plafond aux dalles 50×50 de créer un environnement et un parcours lumineux contrastant et visuel. Finalement, travailler directement l’espace lumière, mouvement afin que celui-ci devienne un repère, une identité du lieu et des espaces.
MOTIFS LUMINEUX
La question de la lumière constitue l’approche même de ce projet avec pour ambition architecturale de réduire les interventions subjectives de l’architecte afin d’aller vers une conception plus mathématique et pragmatique de l’intervention. Le dessin lumineux des espaces confère une esthétique complexe par la règle la plus simple.


